Home
Projects
Contact
Home
Projects
Contact
Building Control Drawings
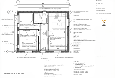
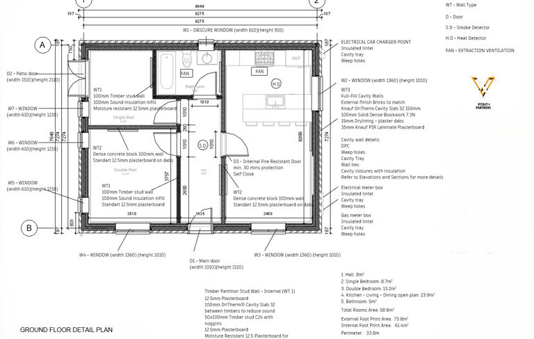
Detailed Floor Plan
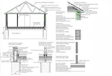
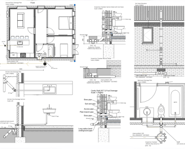
Detailed Section
Thermal Specification Details Sections
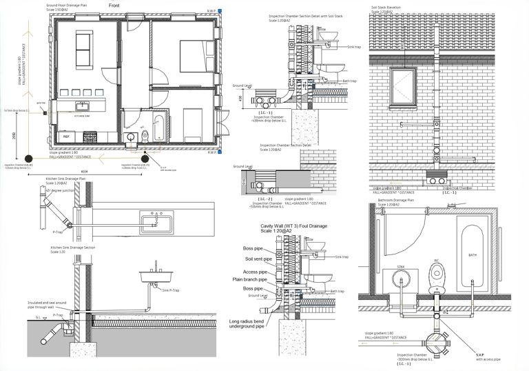
Drainage Details Layout Plan and Sections
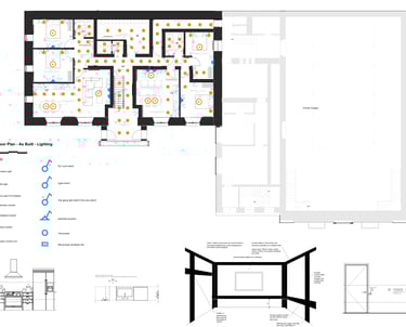
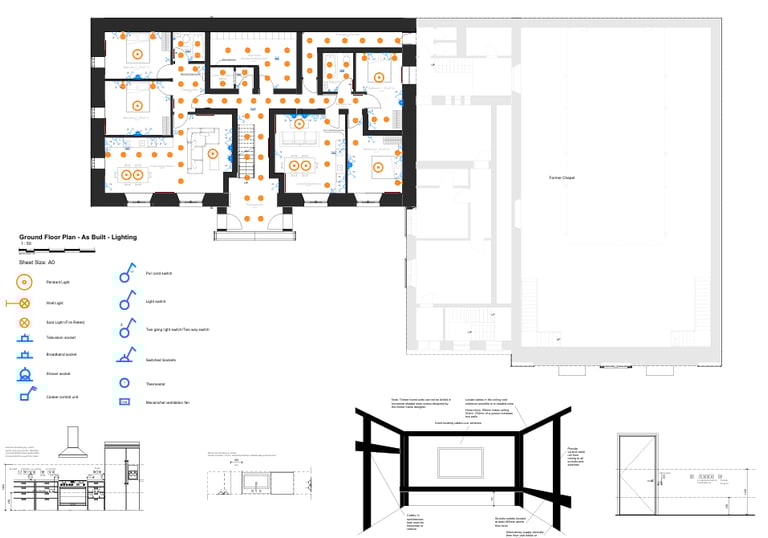
Electrical Details Layout Plan and Sections
Bespoke Details
Visualisation of structural engineer`s details